ニュー今庄ハイツ1号棟、2号棟(公営住宅)の概要
最終更新日:2019年7月23日 ページ番号:02106
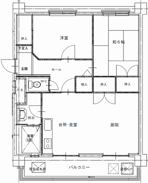
ニュー今庄ハイツ1号棟、2号棟(一部公営住宅)
| 住所 | 南越前町今庄13-11-1 |
|---|---|
| 建設年度 | 平成5年、平成8年 |
| 構造階数 | 中層耐火 3階 |
| 間取り | 2LDK(公営住宅) |
| 該当部屋 | 101、102、201、202、301、302 |
| 駐車場 | 2台 |

お問い合わせ先
建設整備課
電話番号:0778-47-8003 ファックス:0778-47-3166
メール:kensetsu@town.minamiechizen.lg.jp(メールフォームからもお問い合わせいただけます)
表示切替







