桜町町営住宅(特公賃)の概要
最終更新日:2015年10月2日 ページ番号:02793
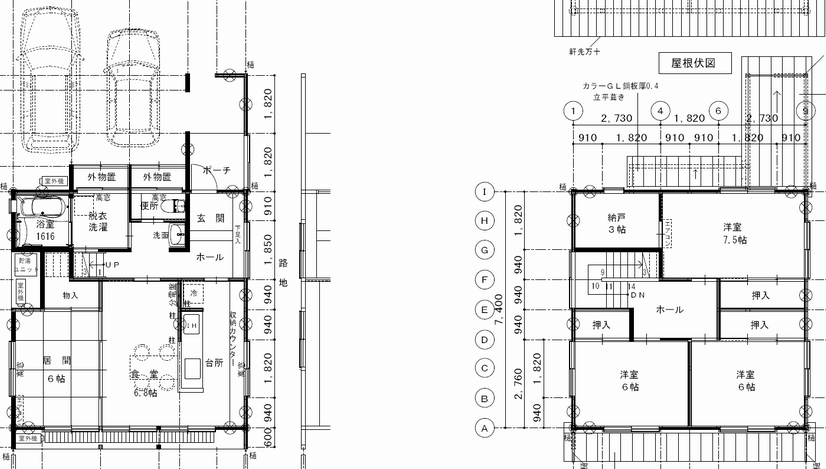
桜町町営住宅1号棟から6号棟まで(特定公共賃貸住宅)
| 住所 | 南越前町牧谷28-17-1 |
|---|---|
| 建設年度 | 平成23年 |
| 構造階数 | 木造2階 |
| 間取り | 4DK(特公賃) |
| 駐車場 | 2台 |

お問い合わせ先
建設整備課
電話番号:0778-47-8003 ファックス:0778-47-3166
メール:kensetsu@town.minamiechizen.lg.jp(メールフォームからもお問い合わせいただけます)
表示切替








