ニュータウンわきあいあいA棟、B棟の概要
最終更新日:2018年8月16日 ページ番号:02794
ニュータウンわきあいあいA棟
| 住所 | 南越前町脇本27-1-3 |
|---|---|
| 建設年度 | 平成26年 |
| 構造階数 | 木造2階 |
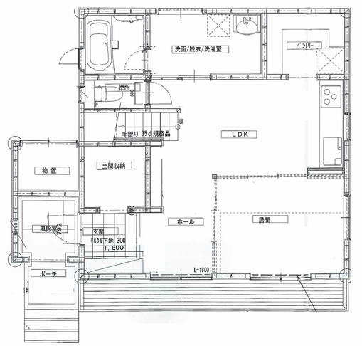
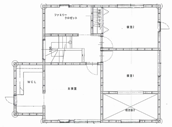
| 間取り | 4LDK |
| 駐車場 | 2台 |


ニュータウンわきあいあいB棟
| 住所 | 南越前町脇本27-1-48 |
|---|---|
| 建設年度 | 平成26年 |
| 構造階数 | 木造2階 |
| 間取り | 4LDK |
| 駐車場 | 2台 |


お問い合わせ先
建設整備課
電話番号:0778-47-8003 ファックス:0778-47-3166
メール:kensetsu@town.minamiechizen.lg.jp(メールフォームからもお問い合わせいただけます)
表示切替
