桜町町営住宅(定住化促進住宅)の概要
最終更新日:2018年8月17日 ページ番号:02795
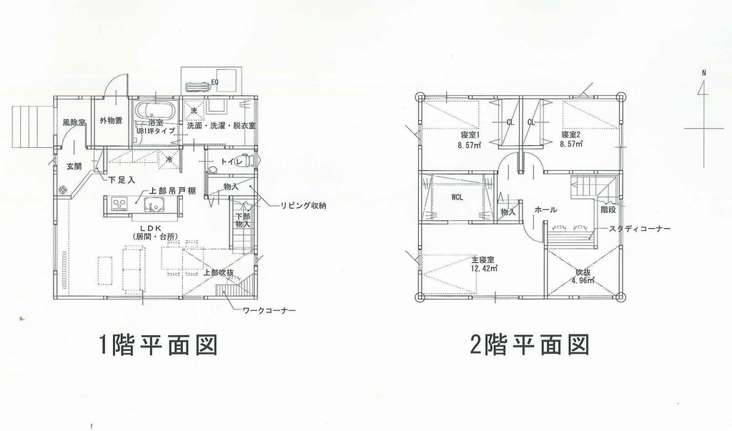
桜町町営住宅10号棟
| 住所 | 南越前町鋳物師45-14-22 |
|---|---|
| 建設年度 | 平成28年 |
| 構造階数 | 木造2階 |
| 間取り | 3LDK |
| 駐車場 | 2台 |

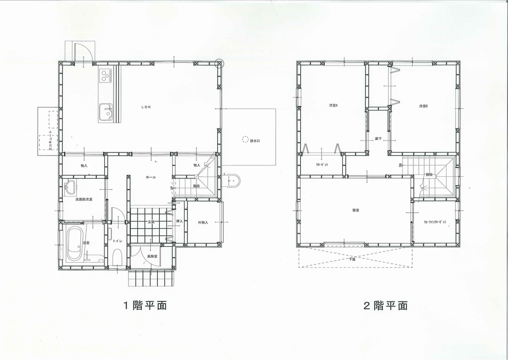
桜町町営住宅11号棟
| 住所 | 南越前町鋳物師45-14-21 |
|---|---|
| 建設年度 | 平成28年 |
| 構造階数 | 木造2階 |
| 間取り | 4DK |
| 駐車場 |
2台 |

桜町町営住宅12号棟
| 住所 | 南越前町鋳物師45-14-25 |
|---|---|
| 建設年度 | 平成28年 |
| 構造階数 | 木造2階 |
| 間取り | 3LDK |
| 駐車場 | 2台 |

桜町町営住宅13号棟
| 住所 | 南越前町鋳物師45-14-26 |
|---|---|
| 建設年度 | 平成28年 |
| 構造階数 | 木造2階 |
| 間取り | 3LDK |
| 駐車場 | 2台 |

お問い合わせ先
建設整備課
電話番号:0778-47-8003 ファックス:0778-47-3166
メール:kensetsu@town.minamiechizen.lg.jp(メールフォームからもお問い合わせいただけます)
表示切替
