地域優良賃貸住宅の概要(B・C・D棟)
最終更新日:2022年3月23日 ページ番号:03873
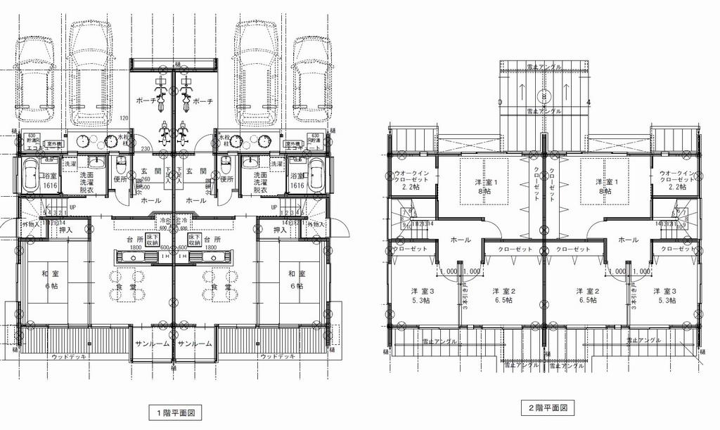
東大道住宅B・C・D棟(地域優良賃貸住宅)
| 住所 | 南越前町東大道27-13-3 |
|---|---|
| 建設年度 |
平成31年(B・C) 令和 3年(D) |
| 構造階数 | 木造2階 |
| 間取り | 4DK(地優賃) |
| 駐車場 | 2台 |
お問い合わせ先
建設整備課
電話番号:0778-47-8003 ファックス:0778-47-3166
メール:kensetsu@town.minamiechizen.lg.jp(メールフォームからもお問い合わせいただけます)
表示切替







