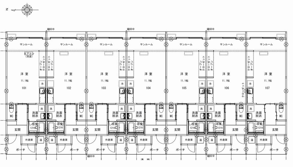
地域優良賃貸住宅の概要(E棟)
最終更新日:2022年3月23日 ページ番号:03874
東大道住宅E棟(若年単身向け地域優良賃貸住宅)
| 住所 | 南越前町東大道27-13-3 |
|---|---|
| 建設年度 |
令和2年 |
| 構造階数 | 木造平屋 |
| 間取り | 1R(地優賃) |
| 駐車場 | 1台 |
お問い合わせ先
建設整備課
電話番号:0778-47-8003 ファックス:0778-47-3166
メール:kensetsu@town.minamiechizen.lg.jp(メールフォームからもお問い合わせいただけます)
表示切替






